AquaIHDC 1,5 a 15

Decantador de lodos y separador de hidrocarburos.

APLICACIONES

Definición:

Los separadores de hidrocarburos para líquidos ligeros están supeditados al marcado CE cumpliendo especificaciones del anexo ZA de la norma UNE-EN 858-1: 2002/A1: 2004 “Sistemas separadores para líquidos ligeros. Parte 1: Principios de diseño de producto, características y ensayo, marcado y control de calidad”.

Funcionamiento:

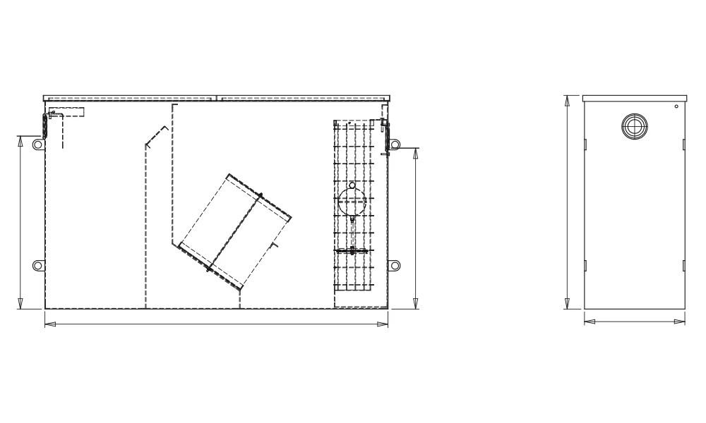
  • El desarenador está calculado para obtener un volumen útil de 100 a 300 litros x TN.
  • El compartimento del separador de hidrocarburos está dimensionado para obtener un vertido inferior a 5 mg/L según los ensayos determinados por la norma EN 858-1.
  • Fabricado en acero S235, protegido después del chorreado SA 2,5 según ISO 8501-1 con un revestimiento epoxi-poliéster.
  • Clase de resistencia 1a según NF P16-451-1/CN.
  • Desbaste extraíble.
  • Bloques lamelares “nido de abeja” en polipropileno
  • Dispositivo de obturación automática de acero inoxidable con junta, calibrado para hidrocarburos de densidad 0,85.
  • Conexiones: entrada mediante junta adaptable y salida con manguito de PVC.
  • Dispone de acceso total con tapas B125 para poder realizar inspecciones y tareas de mantenimiento con total facilidad.
  • Conforme: Marcado CE según Norma UNE-EN 858-1 y NF P16-451-1/CN. Certificado emitido por un organismo independiente.
  • Rendimiento: Clase I – vertido < 5 mg/L HC mediante bloques lamelares “nido de abeja” de elevada superficie activa.
  • Seguridad: gran retención de hidrocarburos. Placa de identificación con toma equipotencial.
  • Fácil mantenimiento: Acceso total al interior de todo el equipo.
  • Sistema de alarma de hidrocarburos, de lodos y de nivel alto, AquaID OIL/SLUDGE/HIGH LEVEL.
  • Realces ajustables en acero.
  • Dispositivo de evacuación de hidrocarburos AquaSKIMMER.
  • Tapas de rodadura para paso de vehículos D400.

IMPLANTACIÓN

Instalación

Ver manual de instalación correspondiente.

Mantenimiento

El vaciado y la limpieza del equipo se deben realizar según normativa, hay que realizar un vaciado semestral y una limpieza anual.

Accesorios

Accesorios

AquaPUMP

Pozos de bombeo

Accesorios

AquaCP

Canal abierto tipo Parshall

Accesorios

AquaFLUX

MedidoR de Caudal en Canal abierto

Accesorios

AquaBOX

Arqueta toma de muestras en PE

Accesorios

AquaTM

Arqueta toma de muestras en PRFV

Accesorios

AquaRED y AquaOX

Sondas de Tª, pH, Conductividad, Oxígeno, con Display

¿En qué podemos ayudarte?

Si tienes dudas, necesitas más información o quieres pedir presupuesto, escríbenos y te responderemos lo antes posible.

Selecciona una de las categorías de productos.

Solicitar Presupuesto para

AquaIHDC 1,5 a 15

Solicitar Catálogo de

AquaIHDC 1,5 a 15